0

ESPACE et LUMIÉRE !

Nice (06200)
Réf : V730002515

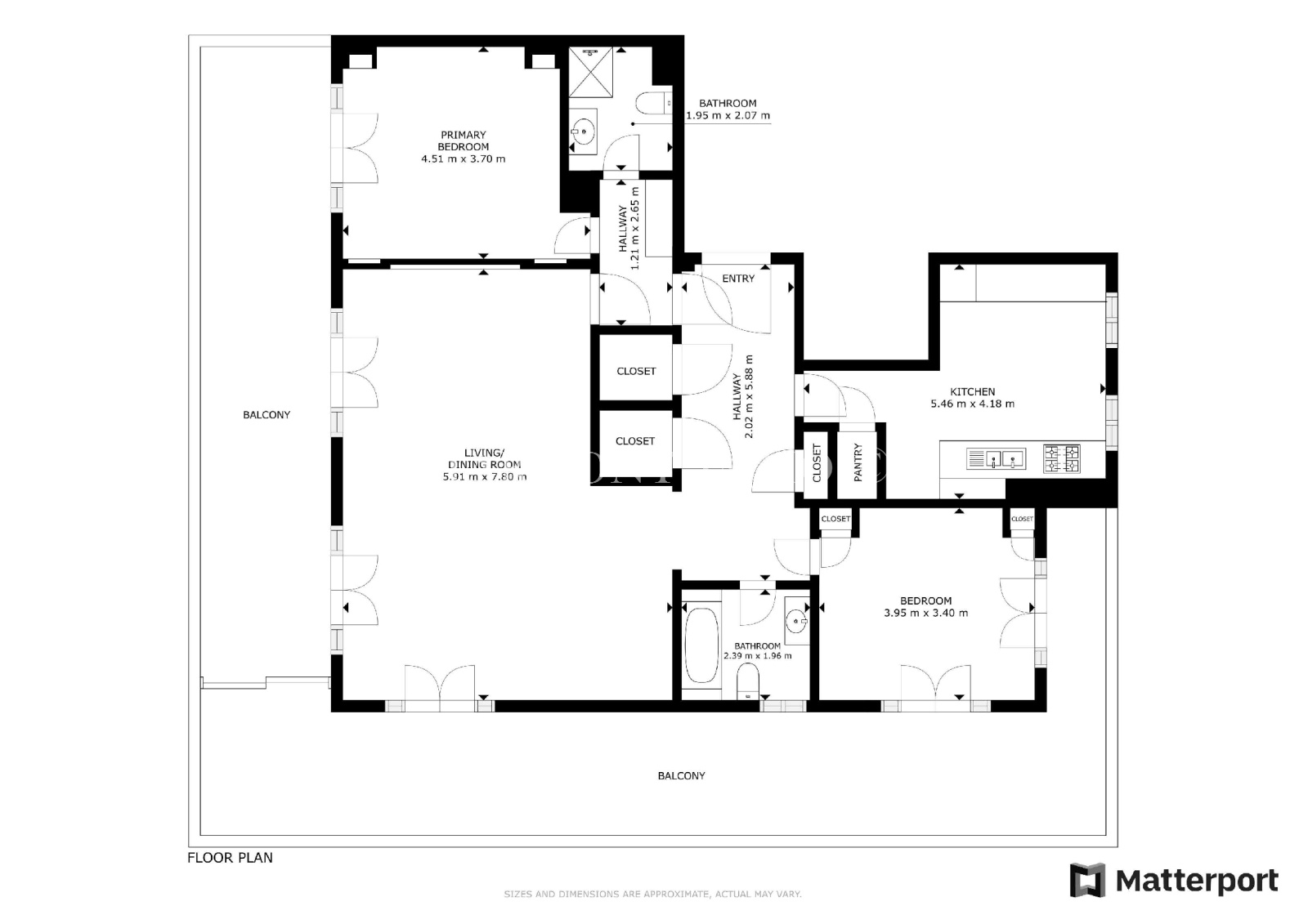
VENDU. EXCLUSIVITÉ. NICE OUEST. FACULTÉ DES LETTRES. RÉSIDENCE TOUR SARRASINE. Au coeur d'un ensemble résidenciel, paysager et sécurisé, voici un appartement au potentiel certain, 3/4 PIÉCES d'une SURFACE de 107 m2, aux VOLUMES GÉNÉREUX, largement ouvert sur une TERRASSE CIRCULAIRE de 55 m2, jouissant d'une exposition idéale SUD/EST et SUD/OUEST, d'une VUE PANORAMIQUE ville, verdure et mer. EN RÉSUMÉ...LE SOLEIL TOUTE LA JOURNÉE. L'appartement est configuré en 3 PIÉCES qui peut être FACILEMENT AMÉNAGÉ EN 4 pièces. L'entrée dessert un salon d'angle de 38m2 , une grande cuisine indépendante, deux belles chambres, une salle d'eau et une salle de bains équipée chacune d'un WC, de nombreux espaces de rangements. Chauffage collectif. Cave. Stationnement aisé. Possibilité d'acquérir un garage. Aucune procédure en cours à notre connaissance. Charges mensuelles 385 €. Annonce proposée par ERIC CLERC mandataire EI - RCS NICE 431 516 362. L'appartement est situé 93 boulevard Edouard Herriot - 06200 NICE.

Annonce proposée par un agent commercial


Les informations sur les risques auxquels ce bien est exposé sont disponibles sur le site Géorisques
Prix du bien 568 500 €
Pièce(s) 4
Chambre(s) 2

Caractéristiques du bien

Caractéristiques Valeurs
Code postal 06200
Surface habitable (m²) 107,43 m²
Surface loi Carrez (m²) 107,43 m²
Nombre de chambre(s) 2
Nombre de pièces 4
Etage 3
Nombre de niveaux 1
Ascenseur OUI
Vue PANORAMIQUE
Nb de salle de bains 1
Nb de salle d'eau 1
Cuisine Séparée
Mode de chauffage Gaz
Type de chauffage Radiateur
Format de chauffage Central
Interphone OUI
Visiophone NON
Balcon NON
Terrasse OUI
Murs mitoyens 1
Cave OUI
Surface cave (m²) 5
Exposition Sud-Ouest
Année de construction 1973
Quartier FACULTÉ DES LETTRES

Infos financières

Caractéristiques Valeurs
Prix de vente 568 500 €
Les honoraires d'agence seront intégralement à la charge du vendeur  
Charges 385 €
Taxe foncière annuelle 2 094 €

Localisationdu bien